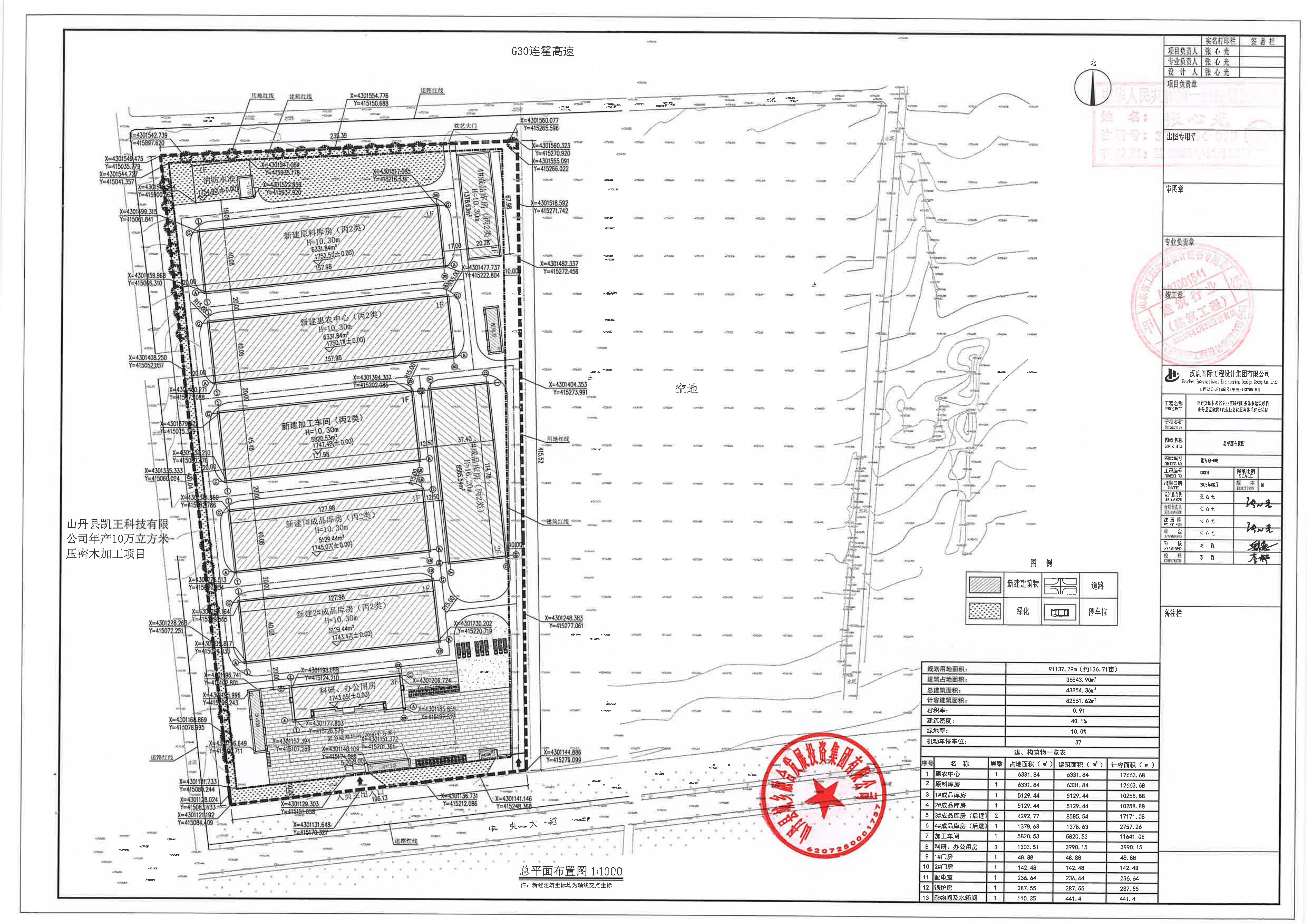
亚行贷款甘肃省农业互联网服务体系建设项目山丹县互联网+农业社会化服务体系建设项目总平面图

索引号: 6207250018/2025-00351

文号:

关键词:

发布机构: 自然资源局

公开形式:

公开目录:

生成日期: 2025-12-10 15:57:26

有效性:

索引号 6207250018/2025-00351 发文字号
关键词 发布机构 自然资源局
公开形式 公开目录
生成日期 2025-12-10 15:57:26 是否有效


扫一扫在手机打开当前页面